ハーバーハウス株式会社(長野支店/松本支店/上田支店) (長野市)

☎026-217-5481

長野市 / S邸 / 夫婦+子ども1人

プロの提案力が導いた理想と省エネが両立した家

 長野市街地に建つ、重厚感のある一軒家。賃貸アパートで暮らしていたSさん夫妻が「この先も長野市で暮らすなら、持ち家があった方がいい」と考え家づくりを決意。マンションという選択肢も一度は浮かんだが、子育てに適した環境を求め、一戸建てという結論に至ったのだという。土地を何社かに相談する中で、長野駅へのアクセスも良好な現在の土地を紹介してくれたのがハーバーハウス。「市街地の広い土地を予算内に収まるように、親身に対応してくれたのが決め手でした」とご主人。
 「モダンでかっこいい家」というざっくりしたイメージだけを伝え、「ほとんどお任せしたのですが、初回から出てきたプランが完璧で、ほぼ理想通りだったんです」。もちろん見た目だけでなく、性能の良さも同社が高く評価されているポイントだ。S邸の断熱等級は6。一年を通して快適な室内温度を保ち、真冬でもエアコン1台で快適に過ごせるという。「夏は連日の猛暑でも毎日快適に過ごせました。エアコンをフルで使っていると、電気代が心配になるところですが、太陽光パネルと蓄電池を設置しているので、余剰売電を合わせると水道代も相殺できて、水道光熱費が実質0円で経済的にも助かりました」とご主人。「家を建てる前は家にいると窮屈で、休日はどこかに出かけないと落ち着かなかった」と話す奥さまも、今では「できるだけ家で過ごしたいと思うようになりました」と笑顔を見せる。理想の住まいで過ごす日々が、家族の笑顔を、これからもっと増やしてくれるはずだ。(ナガノの家vol.25(2025年12月25日発売号)掲載)

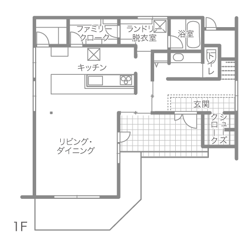
夫婦そろって「とても気に入っている」と話すキッチンまわり。奥さまの希望で、キッチンとダイニングテーブルを横並びに配置し、ひと続きの動線に。調理から配膳、片付けまでがスムーズで、日々の家事負担を軽減してくれる。キッチンカウンターは作業台としても活躍

詳細データ

  • 竣工年月/ 2025年 4月
  • 所在地/長野市
  • エリア/長野
  • 階数/2階
  • 工法/木造軸組工法
  • 延床面積/ 127.52㎡ ( 38.57坪 )
  • 1F/ 79.22㎡ ( 23.96坪 )
  • 2F/ 48.30㎡ ( 14.61坪 )

平面図

特徴

  • ウッドデッキテラスあり
  • 太陽光パネルあり
  • 省エネ・エコ
  • 高気密・高断熱
  • 子育て世代の家
  • キッチンにこだわり
  • インテリアにこだわり
  • 吹き抜けあり

長野県の住宅工務店